Startsida
Våra hus
Mässhus
Referenser
Företaget
Nyhetsarkiv
Kontakta oss
Valmistaloja
Valmistalo-mallit
Asiakassovelluksia
Nya modeller!
Mässvinnareserie
1-planshus
1½- & 2-planshus
Hus + GAR/BT
Parhus
Radhus
Daghem
DH Ivalon PK
Våninsghus
Skolor
Kontor
Bastu
Stugor
Svenska husmodeller
KOMBOHUS Sverige
GENERATION Sverige
Näin rakennetaan
Toimituskuvaus
Lisävalinnat
Materiaalit
Elementtitaloja
Daghem:
DH Ivalon PK
Bilder - Exteriör
Bilder - Interiör
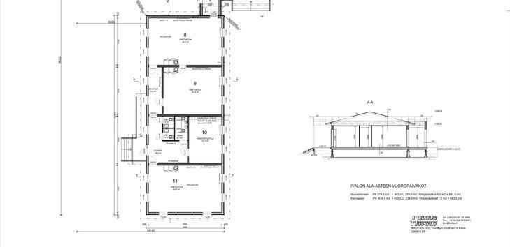
Planlösning
Husfakta
Modell:
DH Ivalon PK
- 0 Rum och kök
Lägenhetsyta:
591 m
2
Våningsyta:
683 m
2
Dokument:
Planlösning
Fasadritning
Alla bilder
(Klicka för att förstora)